
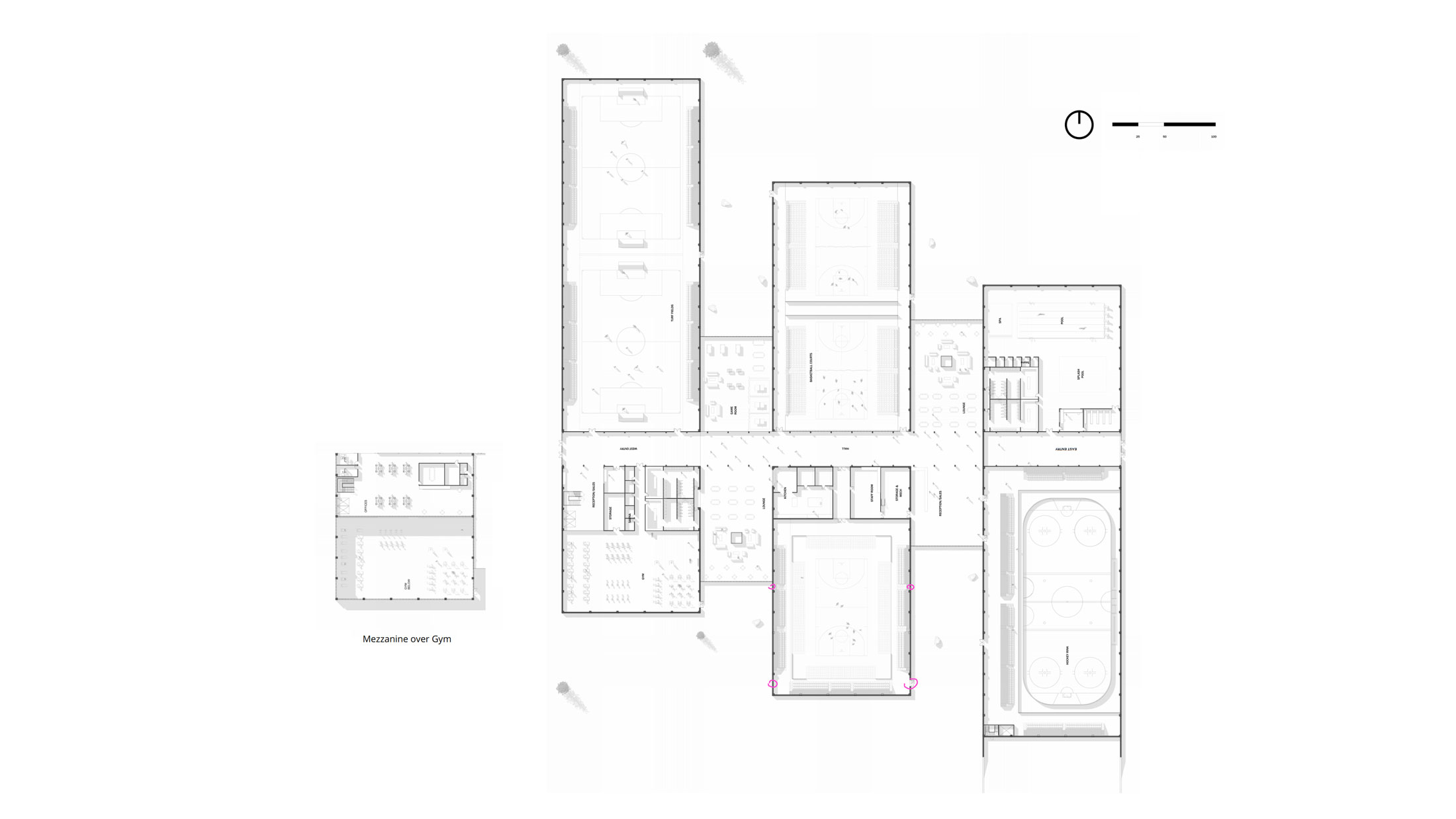
Valley Sports Complex – Sports, Recreation, and Fitness Opportunities for Every Season
The community of Flathead County, Montana, requires indoor recreation space. Long winters with short daylight hours significantly impact the community’s ability to be active and recreate through winter months and shoulder seasons. Snow is on the ground for up to eight months of the year, limiting available outdoor recreation opportunities. The winter climate also has an impact on mental wellness, as seasonal depression due to lack of sunlight is common. Combined with a lack of recreation opportunity, the community would be well served to have a place to commune and interact through the winter season. Montana is known for its rugged and beautiful landscape; the built environment should respect and respond to that. The structure of the building will be locally sourced mass timber, and overall form respectful to the context in which it sits. A sports center that will respect the landscape, enhance a sense of community, and provide recreation
Faculty Aurgho Jyoti (Thesis Advisor)
Awards 2025 Spring Show Prize for Outstanding M.Arch Thesis Project
View Student Work as a:
List
Grid
View Student Work as a:
List
Grid