
Community Garden and Library: Building a Multigenerational Bridge
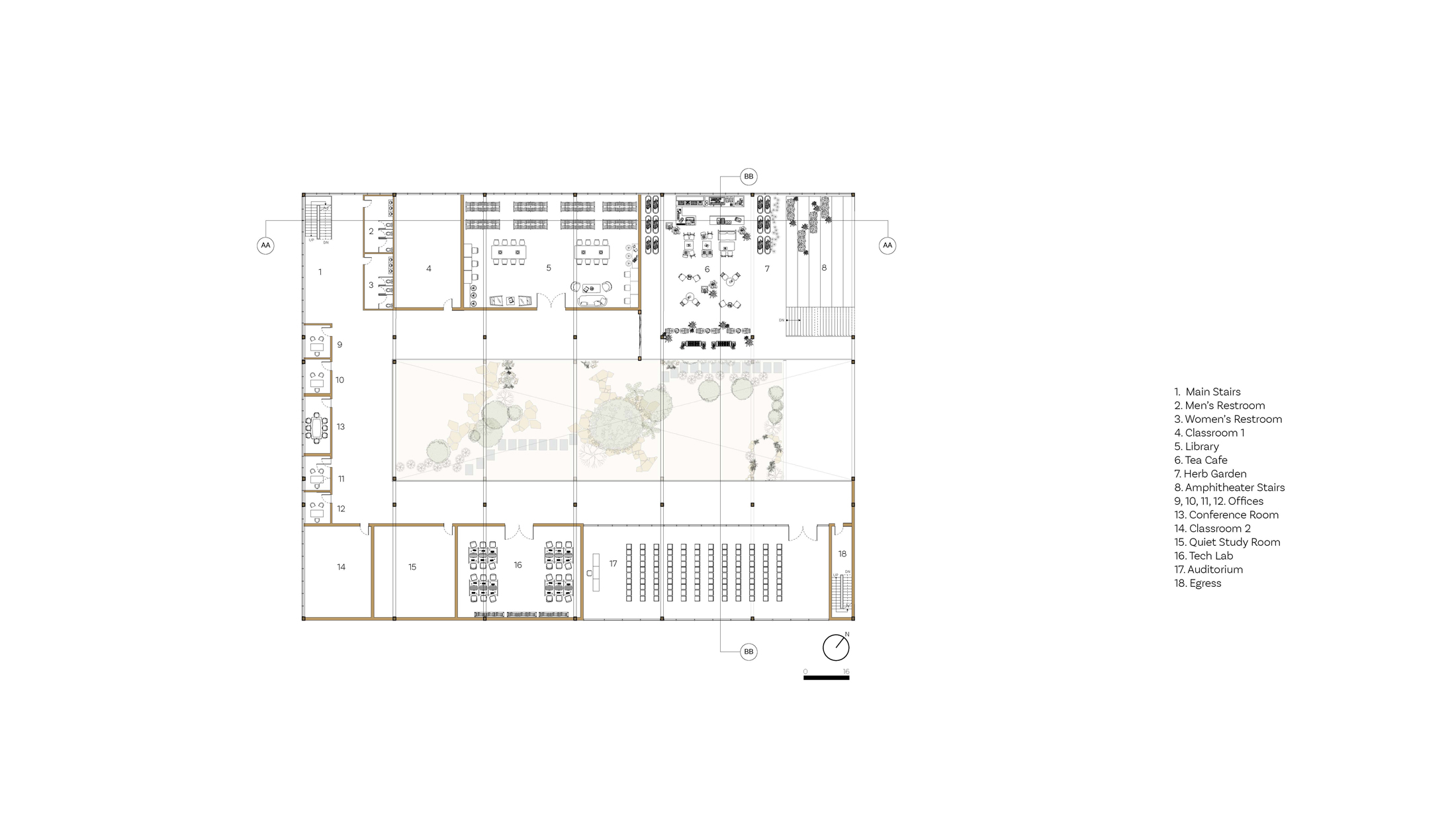
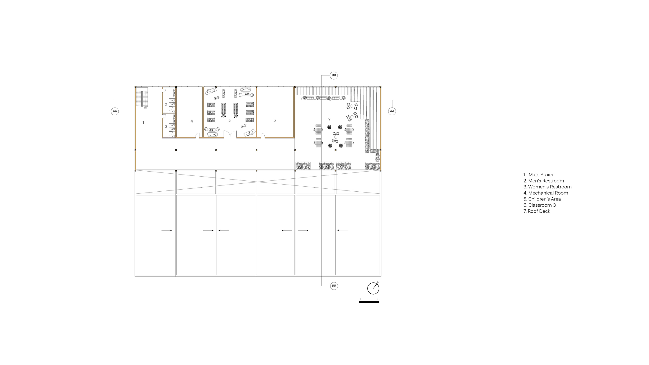
A community center focused on gardening encourages interaction between different age groups, especially between the elderly and young adult immigrants. The three-story tall atrium garden runs along the length of the building. An outdoor amphitheater provides views of Hamilton Park to the east and connects it to the herb garden on the second floor. The roof garden is an additional program for multigenerational engagement. Glulam frames structurally support the building. Vertical wood fins wrap the façade with varied spacing depending on amount of privacy and shade needed. Wellness rooms, meditation spaces, and physical exercise areas are tailored to the elderly’s needs. Technology literacy training is offered for the elderly to stay connected with family and to access essential services online. Workshops help young immigrants understand the cultural, historical, and social dynamics or their new environment helping to ease their transition and foster a deeper sense of belonging.
Faculty Simon McKenzie, AIA and Antonio Lao, RA
View Student Work as a:
List
Grid
View Student Work as a:
List
Grid