
Linear Forest: A Sustainable Community for the Missing Middle
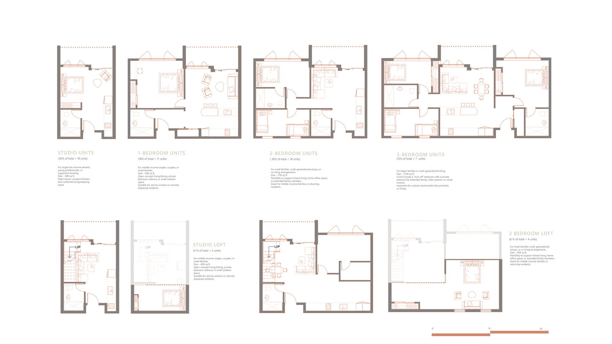
The idea of the multi-family apartment project envisions a Linear Forest – a sustainable urban dwelling designed for the missing middle. Balancing connectivity and privacy, the building embraces the city’s energy while offering residents a tranquil retreat. The design integrates nature-inspired elements, ensuring green buffers and daylight filled spaces that promote well-being. To support diverse lifestyles, the building provides a daycare facility for families with kids, a library-office space for residents to work and study, and a street-facing café that fosters interaction between the community and the adjacent park. Through these thoughtful inclusions, the project seamlessly blends urban engagement with private sanctuary, creating a harmonious, inclusive, and sustainable living environment.
Faculty Charles Green
Awards Leadership Award NOMAS
View Student Work as a:
List
Grid
View Student Work as a:
List
Grid