
Urban Garden – Meaningful Relationships are at The Core of who We are as Individuals
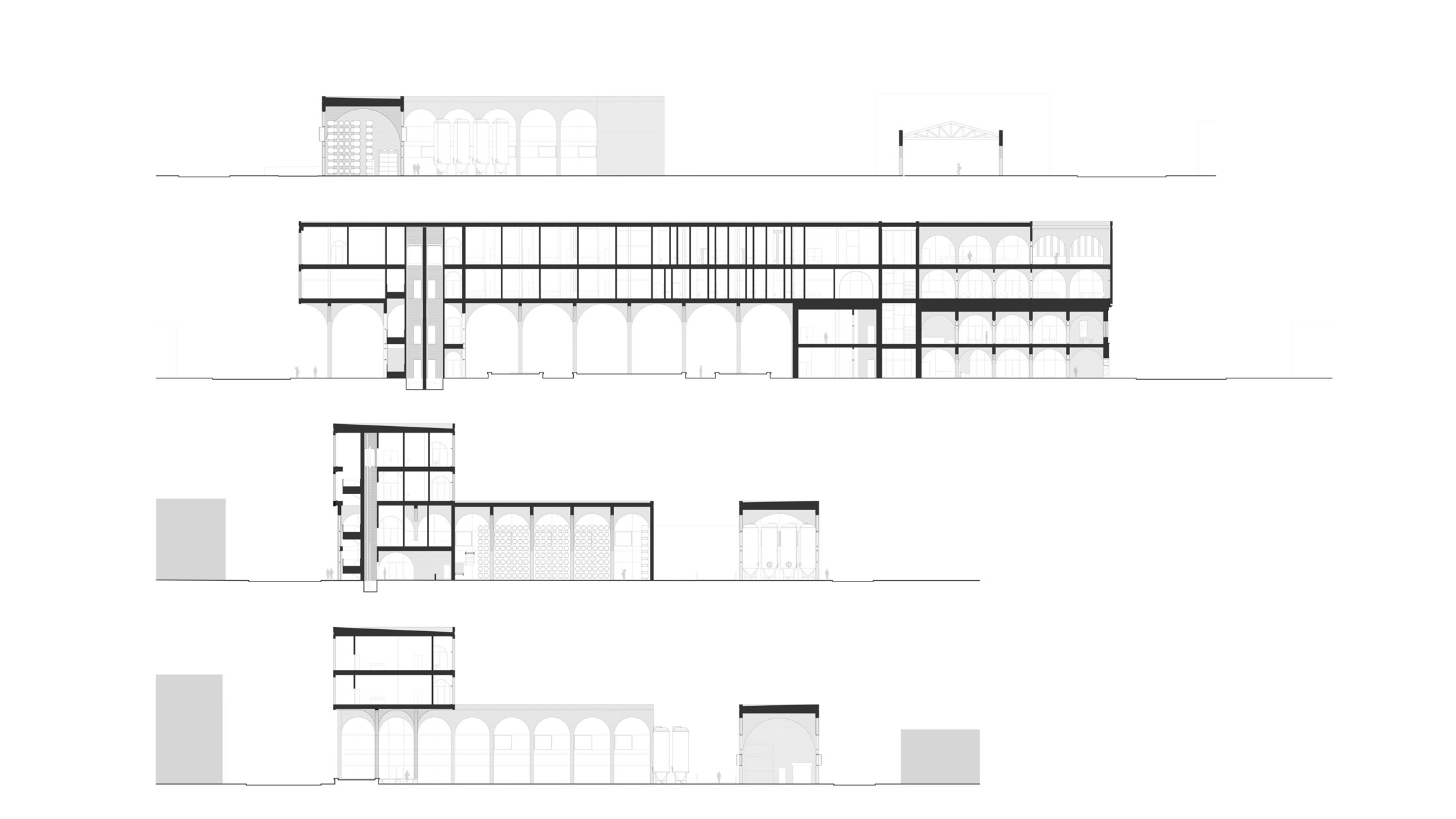
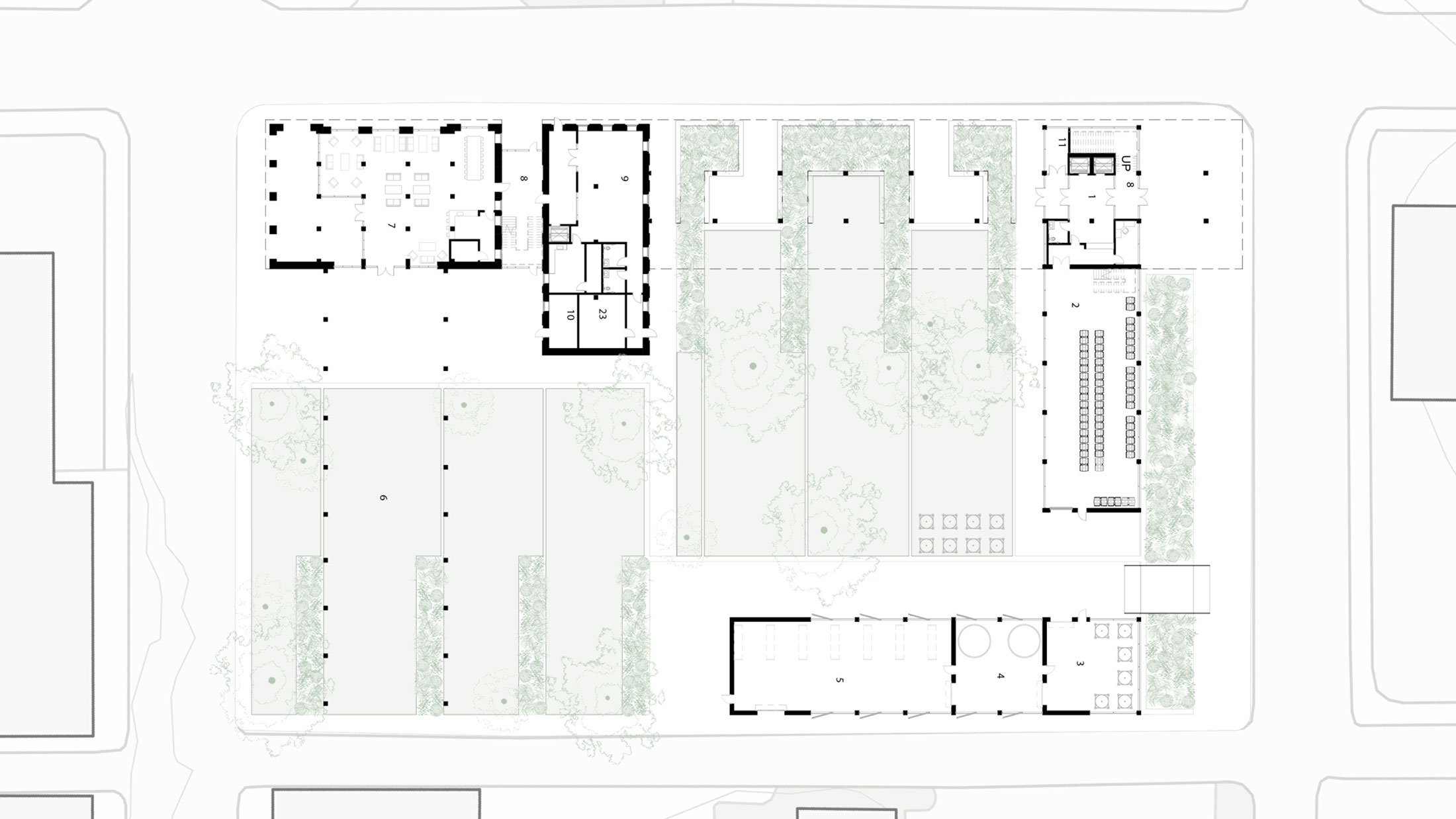
Over the last decade, Lancaster, Pennsylvania, has undergone rapid growth, with neighborhood revitalization driven by the expansion of the central business district. At the same time, the pandemic has accelerated a shift toward remote work and digital living, leading to a decline in meaningful relationships and community connections. Located between major routes and within walking distance of the train station, hospital, and local amenities, the project site in North Lancaster is ideally positioned for a new civic hub. Millennials are moving to the Stadium District for its affordability and proximity to work, yet the area lacks a shared public space for large gatherings. This thesis proposes that architecture can bridge that gap, creating a place where relationships are built and sustained. Once home to a thriving industry, North Lancaster still bears the legacy of its brick mill buildings. Many have been revived through adaptive reuse. One such building, 811 North Prince Street—originally a bakery designed by C. Emlen Urban—will be reimagined as a community anchor that reconnects people with tradition, craft, and one another. At the heart of this reactivation is bourbon, a distinctly American product that has long played a role in gathering, celebration, and conversation. Its production becomes a tool for reconnecting society with shared rituals and values. This project reintroduces industry not as labor, but as culture, creating a space where people can learn from one another, form intergenerational bonds, and rebuild a sense of belonging through shared experience.
Faculty Aurgho Jyoti (Thesis Advisor)
Awards 2025 Spring Show Prize for Outstanding M.Arch Thesis Project
View Student Work as a:
List
Grid
View Student Work as a:
List
Grid