
Library of Light: Japanese Heritage Library in the Western Addition
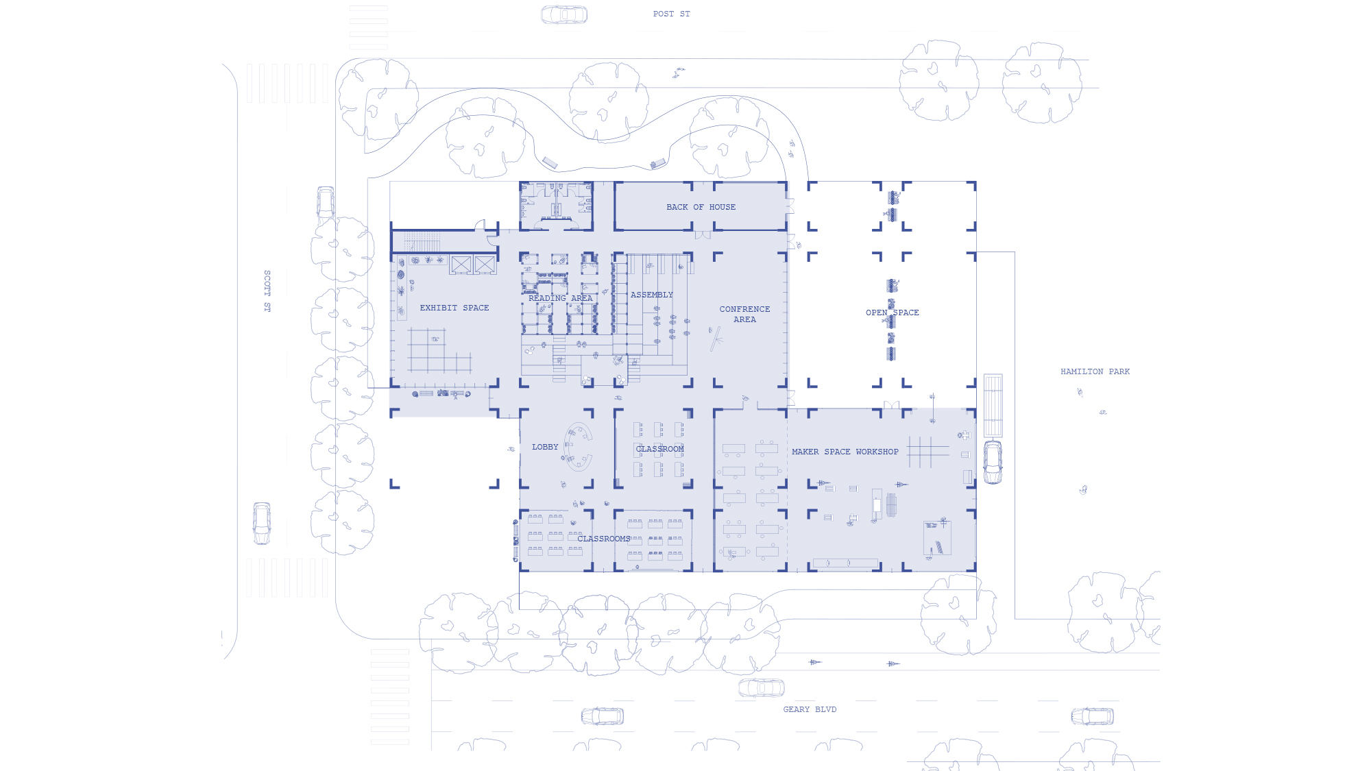
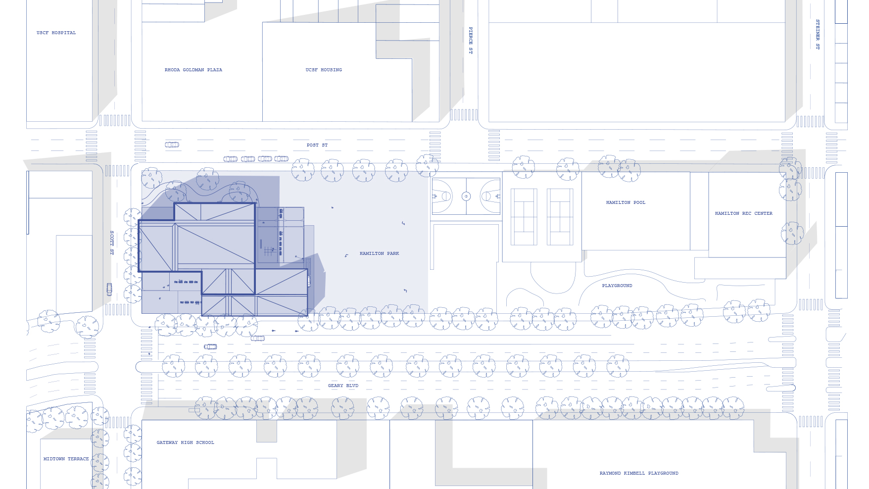
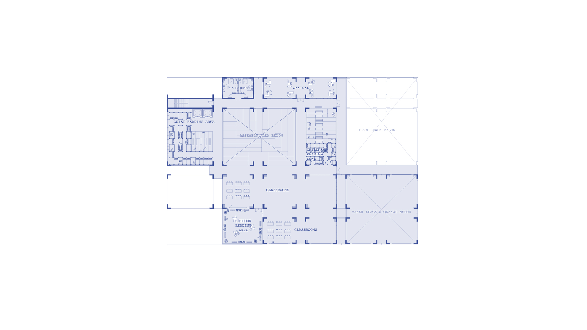
The rich history of Japanese American culture in the Western Addition neighborhood of San Francisco is referenced for a newly imagined public library. In this library, learning happens in many ways. Discussions in classrooms, hands-on learning in the workshop, peer learning in classrooms overlooking the shop, and in private reading nooks. People in the community, including recent high school graduates, can learn a trade or take an art class in the shop as well as take classes in the adaptable classrooms or attend lectures on the assembly stairs. The art of origami is a departure point for the roof comprised of translucent polycarbonate panels that are folded to modulate and filter natural light. The structural systems use wood joinery to create a lattice-like tectonic expression in the interior spaces.
Faculty Simon McKenzie, AIA and Antonio Lao, RA
Awards Leadership Award AIAS
View Student Work as a:
List
Grid
Floor Plan 1
Floor Plan 2
Floor Plan 3
View Student Work as a:
List
Grid